Đà Lạt – vùng đất thơ mộng nằm ẩn mình giữa những dãy núi xanh biếc và hồ nước tuyệt đẹp, luôn là điểm đến lý tưởng cho những kỳ nghỉ đáng nhớ. Trong bài viết này, chúng tôi sẽ giới thiệu đến bạn một viên ngọc quý tại thành phố Đà Lạt – biệt thự nghỉ dưỡng Song Kỳ Villa. Với thiết kế tinh tế và nhiều tiện ích nổi bật, Song Kỳ Villa không chỉ là nơi dừng chân tuyệt vời mà còn là trải nghiệm đáng nhớ. Đơn vị thi công căn biệt thự này là Palm Archi – Đơn vị Thiết kế xây dựng chất lượng, uy tín hàng đầu tại TPHCM.
Siêu biệt thự nghỉ dưỡng Song Kỳ Villa có gì đặc biệt?
Khối kiến trúc hiện đại với những đường thẳng tinh tế










Đầy đủ công năng theo yêu cầu
Diện tích sàn sử dụng của căn biệt thự khá lớn. Với 480m2, KTS của Palm Archi đã bố trí đầy đủ công năng của Chủ đầu tư yêu cầu:
-
Tầng hầm công trình với garage rộng để được hai chiếc xe oto, phòng bếp và phòng ngủ.
-
Tầng 1 được thiết kế không gian mở hoàn toàn, những không gian quan trọng đều được kết nối với nhau. Bước vào từ sảnh đón, không gian phòng khách được xuyên suốt với khu vực bếp ăn. Đây là khu vực sinh hoạt chung cho cả gia đình, tạo liên kết giữa những người thân yêu lại với nhau.
-
Tầng 2 sở hữu 3 phòng ngủ với tầm nhìn được mở rộng bằng tường full kính cường lực, ôm trọn cảnh sắc thơ mộng của đồi thông Đà Lạt.
-
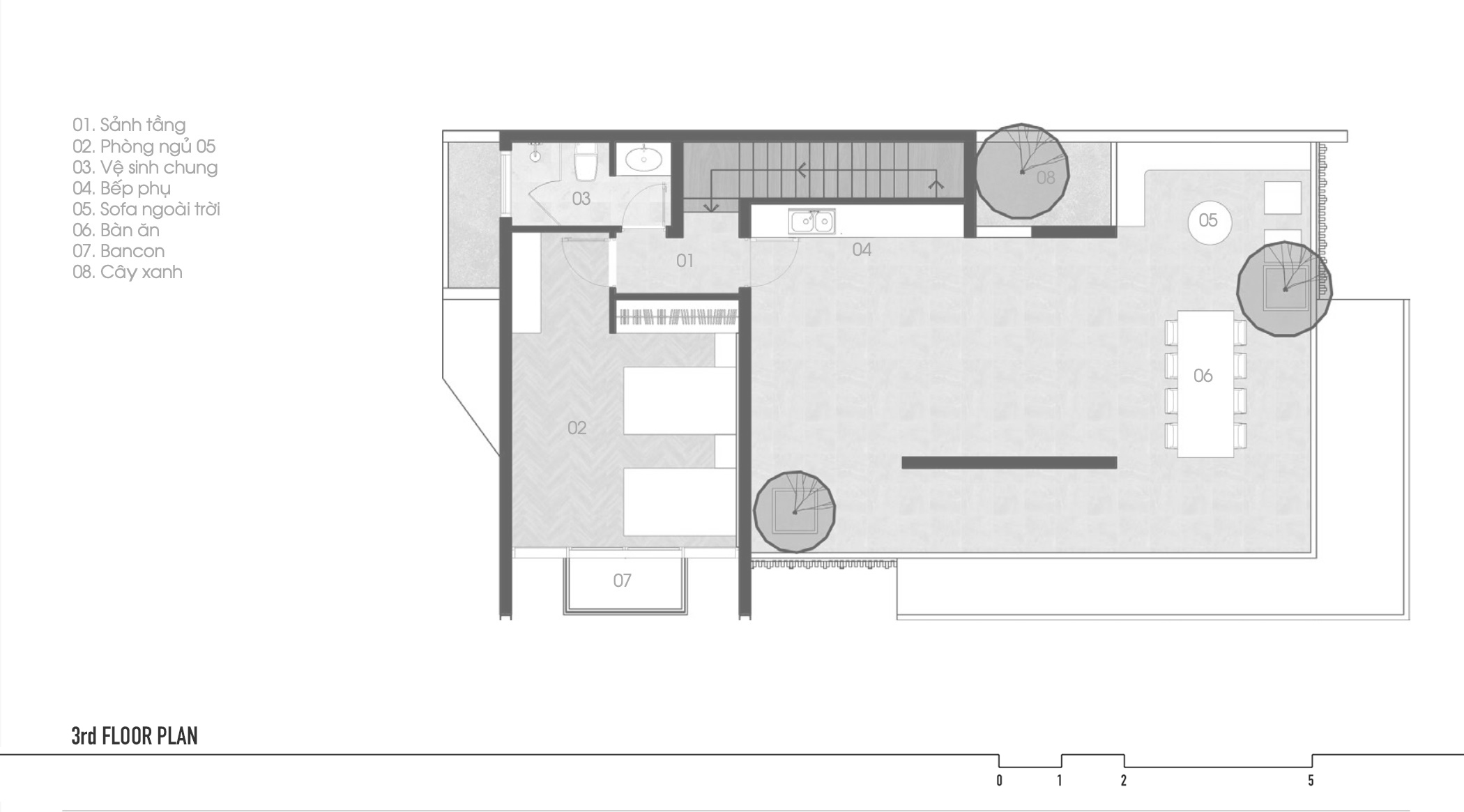
Tầng 3 là khu vực sân thượng và phòng ngủ giường đôi của tầng áp mái. Với góc bếp nhỏ để phục vụ cho bàn ăn được
Khu vực sân vườn và giải trí





Phong cách nội thất đơn giản – Đi tìm cái đẹp trong sự không hoàn hảo
Phong cách nội thất hơi hướng wabi sabi – đi tìm cái đẹp trong sự không hoàn hảo của phong cách này mang lại không gian đơn giản nhưng lại tinh tế cho căn biệt thự.



Phòng ngủ và khu vực vệ sinh
Với lợi thế nằm trên sườn đồi thoải, các KTS của Palm đã tinh tế bố trí cửa kính full để tối đa tận dụng
Phân tích khối nhà và mặt bằng
LIÊN HỆ NGAY VỚI PALM ARCHI ĐỂ ĐƯỢC HỖ TRỢ VÀ TƯ VẤN
HOTLINE: +84 81 818 6818
Add: 47 Đường Số 37, Khu Đô Thị Vạn Phúc, Hiệp Bình Phước, TP. Thủ Đức, TP. Hồ Chí Minh, Việt Nam
Fanpage: Palm Archi
Email: info@palmarchi.vn
Trang web: https://palmarchi.com/






















